Bakerview West Business Park

A Premier 21-Acre Mixed-Use Commercial Development

Bellingham, WA — Bakerview / I-5 Corridor

21-Acre Mixed-Use Business Park in Bellingham, WA

Bakerview West Business Park is a master-planned, campus-style commercial development offering modern office, light industrial/flex, and retail spaces for purchase. Positioned along the high-visibility Bakerview/I-5 corridor, the park is designed for owner-users and investors seeking quality new construction in one of the Pacific Northwest's most dynamic markets.

21 Acres
310K Square Feet
3 Development Phases
Mixed Use Types

Campus-Style Design

Landscaped common areas, cohesive architectural branding, and above-standard exterior finishes create a professional, inviting environment.

Flexible Commercial Spaces

Scalable building footprints with flexible floor plates and mezzanine options accommodate a wide range of business needs.

New Construction Standards

Energy-efficient HVAC and lighting, modern building systems, and clear heights suitable for light industrial users.

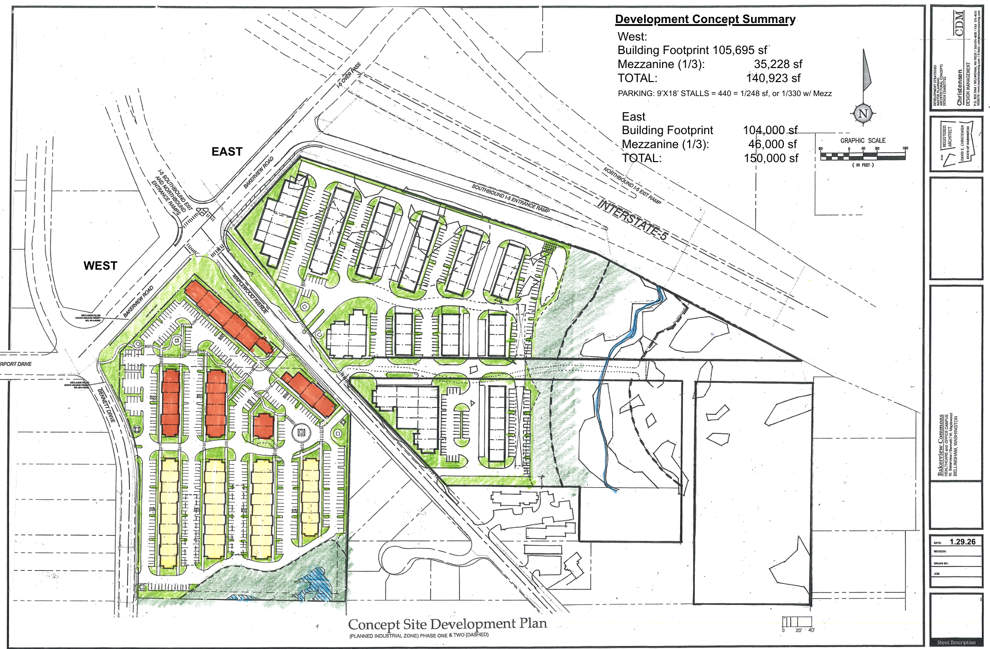
Campus-Style Site Plan

Explore the Bakerview Commons concept site development plan — a motorcourt-style master plan featuring East and West parcels with flexible office, industrial, and retail spaces.

Bakerview Commons — Concept Site Development Plan showing East and West parcels with motorcourt layout
Retail ~3 Acres
Office ~7 Acres
Light Industrial / Flex ~11 Acres

Office, Flex & Retail Spaces For Sale

Three distinct use types serve a diverse range of businesses, from professional offices to light manufacturing and neighborhood retail.

Retail

~3 Acres
  • Food & beverage
  • Fitness & personal services
  • Banking & financial
  • Convenience retail

Office

~7 Acres
  • Regional corporate offices
  • Professional services
  • Medical & wellness
  • Tech & creative firms

Light Industrial / Flex

~11 Acres
  • Light manufacturing
  • Warehousing & distribution
  • Contractors & trades
  • R&D & assembly

Design & Construction Standards

Building Types

Single-story, single-story with mezzanine, and multi-story build-to-suit options

Floor Plates

Flexible layouts with clear heights suitable for light industrial users

Building Systems

Energy-efficient HVAC, modern lighting, and high-quality mechanical systems

Exterior Finishes

Above-standard finishes with modern facades and cohesive campus branding

Parking

Ample, flexible parking designed to meet a range of business requirements

Common Areas

Landscaped green spaces and maintained common areas throughout the campus

Bakerview / I-5 Corridor Location

Strategically positioned along the Bakerview/I-5 corridor in Bellingham, WA — one of the Pacific Northwest's fastest-growing markets with strong regional connectivity.

I-5 Visibility & Access

High-traffic corridor with excellent visibility and direct interstate access for employees, customers, and logistics.

Growing Market

Bellingham's expanding economy drives demand for modern commercial space from small-to-mid-size businesses.

Regional Connectivity

Convenient access to the greater Puget Sound region, Canadian border, and Bellingham International Airport.

Limited New Supply

Scarce inventory of new for-sale flex and office product in the market creates strong demand fundamentals.

New Construction Development Phases

A disciplined, phased approach aligned with presales and market demand — reducing risk while delivering quality commercial spaces on schedule.

1

Phase 1 25% of Project

77,500 SF

  • Site preparation and infrastructure
  • Central amenities and landscaping
  • Build-to-suit opportunities for pre-committed buyers
  • Pre-sales of light industrial/flex buildings
  • Potential retail pad sites
2

Phase 2 35% of Project

108,500 SF

  • Additional flex/industrial space with BTS opportunities
  • Expanded retail or office based on absorption and demand
  • Sales-based commitments guide construction
3

Phase 3 40% of Project

124,000 SF

  • Remaining development driven by market performance
  • Flexible programming based on demonstrated demand
  • Continued build-to-suit and pre-sale model

Presale Thresholds: Each phase requires meeting presale targets before vertical construction begins, ensuring disciplined capital deployment and reduced speculative risk.

Owner-User & Investor Opportunities

A conservatively underwritten development opportunity with strong fundamentals and disciplined risk management.

$375 Average Sale Price per SF
33.3% Gross Margin
310K SF Total Building Area
65% Loan-to-Cost Ratio

Market Comparables

Product Type Market Range
Office Condominium (1,000–5,000 SF) $450–$490/SF
Flex/Office Condo (2,000–10,000 SF) $325–$400/SF
Light Industrial Owner-User (5,000–20,000 SF) $250–$350/SF

Risk Mitigation

  • Phased development tied to presale thresholds
  • Conservative leverage ratios
  • Diversified tenant and owner-user mix
  • Stress-tested pricing at -10% and -15% scenarios
  • True NNN structures and early unit sales

Buyer Financing Support

We facilitate access to competitive financing through established lender relationships, including conventional owner-user loans, SBA-backed financing, and build-to-suit capital solutions.

Inquire About Commercial Space For Sale

Interested in learning more about Bakerview West Business Park? Reach out to discuss available spaces, investment opportunities, or build-to-suit options.

Quick Response Guarantee: Submit your inquiry below and our sales team will respond within 24 business hours. No obligations.

Property Management

Windermere Commercial Property Management

Location

Bakerview / I-5 Corridor
Bellingham, WA